Skip to main content
Hit enter to search or ESC to close
Close Search
Sur Landscape Architecture
Menu
  • Home
  • Mission
  • People
  • Projects
  • Process
  • Contact

The Farmhouse, Kansas City

Design Process
    Share
    Share Tweet Share Pin

A suburban homestead was transformed into a regenerative wellness landscape where daily acts of tending and harvesting create healing encounters with natural systems. The design creates interconnected garden rooms that support biodiversity, provide fresh food, and foster mindfulness through hands-on work with soil, water, plants, and wildlife.

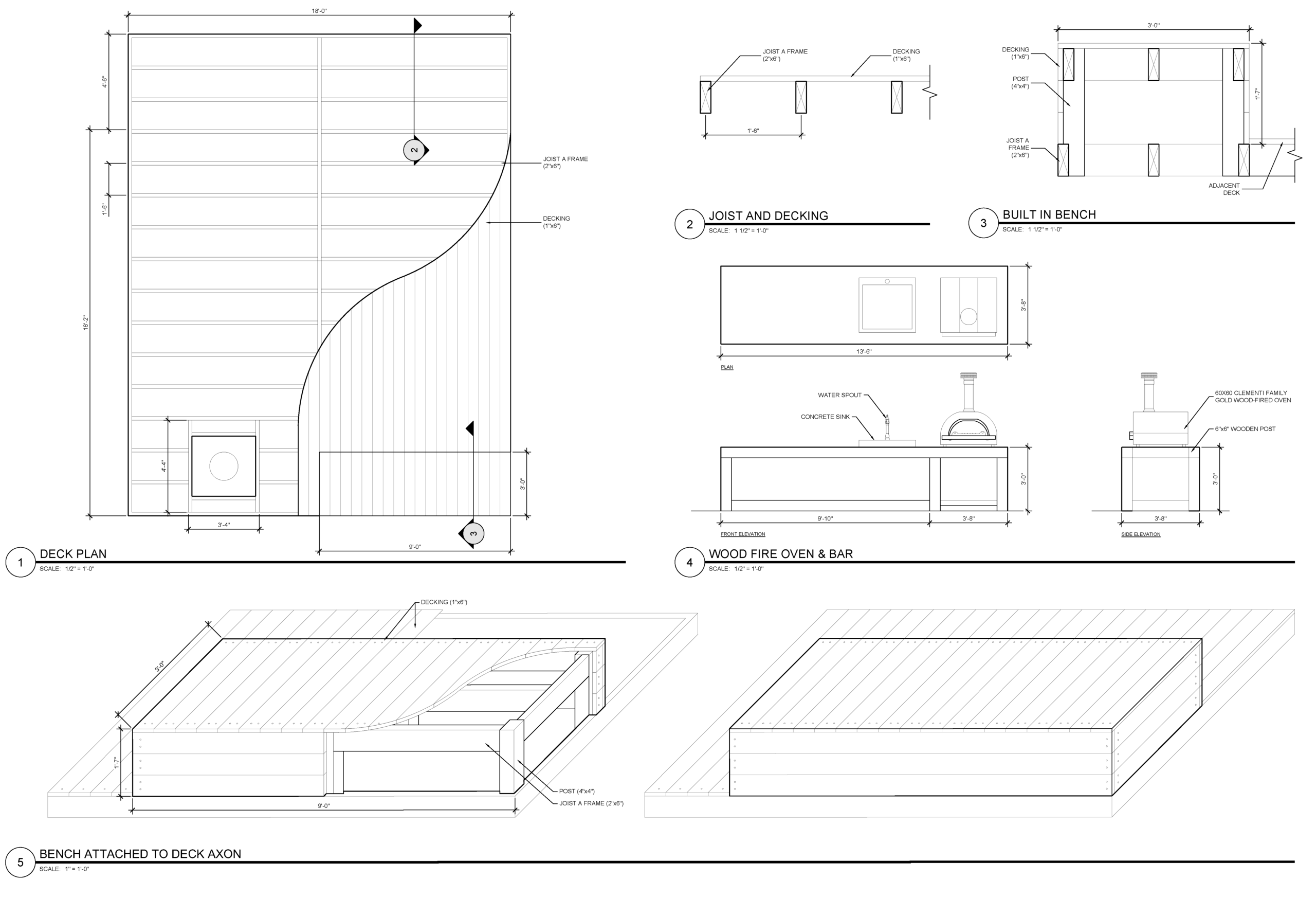
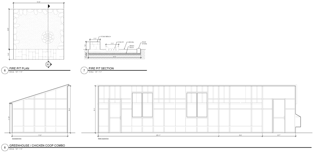
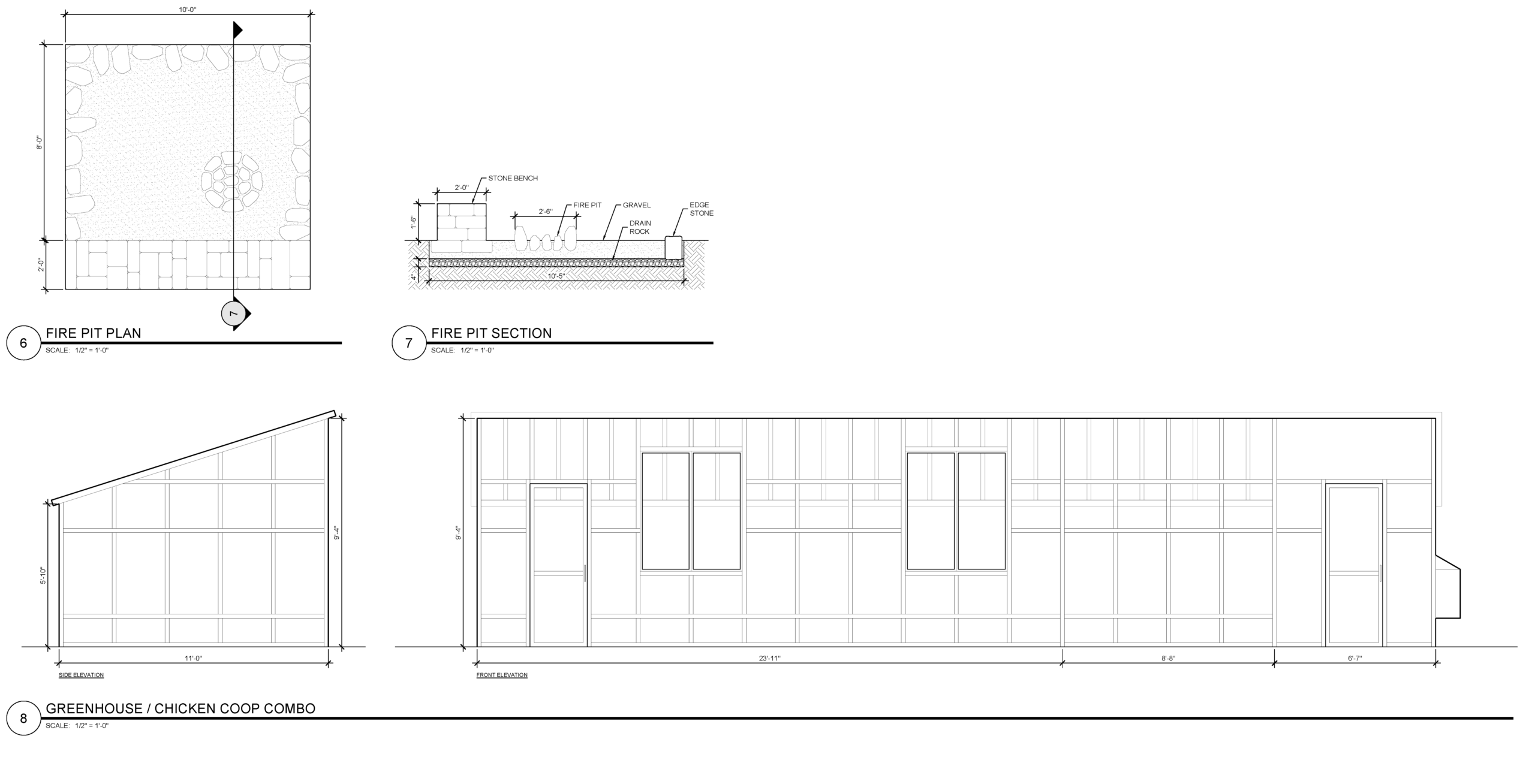
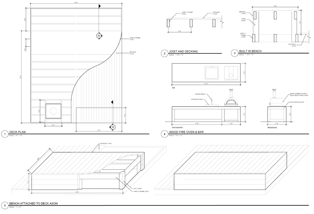
Reclaimed stone walls and pathways lead from the street into a shaded woodland garden that opens to sunny apothecary and edible gardens framed by woven wattle edges. A rain garden captures stormwater and creates wetland habitat, while compost and vermicompost systems build healthy soil. The natural pool offers chemical-free swimming surrounded by plantings, the greenhouse extends the growing season, and the chicken coop brings animals into daily rhythms. Mowed paths connect these garden rooms, each turn revealing new textures and seasonal changes, with a stone fire pit providing a gathering space for cooler evenings.

This landscape demonstrates that supporting wildlife and nurturing human mental health are inseparable. Native plantings support over 300 pollinator species, filling the garden with movement and sound that reduces stress and encourages presence. Daily tasks become meditative practices: harvesting herbs, turning compost, tending seedlings, collecting eggs. Each act deepens connection to seasonal rhythms and our place within natural systems. From morning walks through dew-laden plantings to evening fires, this garden provides both sanctuary and sustenance, proving that regenerative design heals people and place together.

© 2026 Sur Landscape Architecture.

Close Menu
  • Home
  • Mission
  • People
  • Projects
  • Process
  • Contact